|
Pinnoitettavat neliökansistot
HST / RST tai alumiini Pinnat voidaan viimeistellä usealla eri tavalla
|
Jupalcon pinnoitettavat kansistot ovat valmistettu
teräslevystä tai alumiinista. Niissä on mallista
riippuen valmiina kuormitusta vastaavat raudoitukset.
Lujuusluokat kansistoille ovat B125 - D400.
Jotta kuormituskestävyydet saavutetaan on asennusvara
täytettävä kokonaan vähintään K45 betonilaadulla.
Betonitäyttö jätetään pintamateriaalin verran vajaaksi.
Jos kansiston pintamateriaaliksi valitaan esim. laatoitus
eikä asennusvaraa täytetä kokonaan betonilla on
kuormituskestävyys alempi.
Kansistot voidaan päällystää asennuspaikan mukaan
esim. laatoilla, mosaiikilla tai sävytetyllä betonilla.
Kehyksestä ja kannesta jää näkyviin vain ohuet reunat
sekä nostopisteet. Kehys ja kansi toimitetaan aina settinä.
Erittäin vaativiin kohteisiin kansisto voidaan valmistaa
kokonaan haponkestävästä teräksestä.
Jupalcon kansistoja on saatavilla tiivisteellisenä jolloin
kansisto on vesi-, haju-, kaasu,- sekä pölytiivis. Tiiveys
voidaan varmistaa kannen lukitusmekanismilla, joka
pitää kannen tukevasti paikoillaan sekä estää
ulkopuolisten henkilöiden pääsyn kaivoon.
Toteutamme kansistoja myös kohteen mittojen mukaan.
|
Lattialuukut
Huoltotilat
Tarkastuskaivot
Pumppaamot
Torialueet
|
Kevyen liikenteen alueet, painoluokitus B125 (15 tn) HST / RST tai alumiini Pinnat voidaan viimeistellä usealla eri tavalla
Kaasutiiviit pinnoitettavat neliökansistot RST / HST lujuusluokka B125, tiivisteellä
| Nimitys |
Lujuus- luokka |
Kehyksen ulkomitat A x B |
Vapaa aukko C x D |
Kokonais- korkeus H mm |
Jupalco LVI-koodi |
Alv 0% |
Pinnoitettava kansisto 320 x 320 tiivisteellä | B125 (15tn) | 320 x 320 | 180 x 180 | 70 | 2604325 | pyydä tarjous |
Pinnoitettava kansisto 420 x 420 tiivisteellä | B125 (15tn) | 420 x 420 | 280 x 280 | 70 | 2604326 |
Pinnoitettava kansisto 600 x 600 tiivisteellä | B125 (15tn) | 600 x 600 | 440 x 440 | 85 | 2604329 |
Pinnoitettava kansisto 780 x 780 tiivisteellä | B125 (15tn) | 780 x 780 | 600 x 600 | 100 | 2604332 |
Soviteosa, lisävarusteena tartuntaraudat (soviteosan kanssa kansistojen vapaa aukko voi muuttua) | Muoviputkille ja betonirenkaalle Tiedustele eri kokovaihtoehtoja |
Liikennealueelle, painoluokitus D400 (40 tn) HST / RST tai alumiini Pinnat voidaan viimeistellä usealla eri tavalla
Kaasutiiviit pinnoitettavat neliökansistot RST / HST lujuusluokka D400, tiivisteellä
| Nimitys |
Lujuus- luokka |
Kehyksen ulkomitat A x B |
Vapaa aukko C x D |
Kokonais- korkeus H mm |
Jupalco LVI-koodi |
Alv 0% |
Pinnoitettava kansisto 500 x 500 tiivisteellä | D400 (40tn) | 500 x 500 | 360 x 360 | 150 | 2604327 | pyydä tarjous |
Pinnoitettava kansisto 800 x 800 tiivisteellä | D400 (40tn) | 800 x 800 | 620 x 620 | 150 | 2604333 |
Pinnoitettava kansisto 1200 x 1200 tiivisteellä | D400 (40tn) | 1200 x 1200 | 960 x 960 | 195 | 2604334 |
Soviteosa, lisävarusteena tartuntaraudat (soviteosan kanssa kansistojen vapaa aukko voi muuttua) | Muoviputkille ja betonirenkaalle Tiedustele eri kokovaihtoehtoja |
Pinnoitettavat 2-osaiset kansistot
Liikennealueelle, painoluokitus D400 (40 tn) HST / RST tai alumiini Pinnat voidaan viimeistellä usealla eri tavalla
Kaasutiivis pinnoitettava suorakaidekansisto RST / HST lujuusluokka D400, tiivisteellä
| Nimitys |
Lujuus- luokka |
Kehyksen ulkomitat A x B |
Vapaa aukko C x D |
Kokonais- korkeus H mm |
Jupalco LVI-koodi |
Alv 0% |
Pinnoitettava kansisto 1420 x 820 tiivisteellä. 2-osainen kansiratkaisu irroitettavalla välikappaleella | D400 (40tn) | 1420 x 820 | 1180 x 580 | 290 | 2604335 | pyydä tarjous |
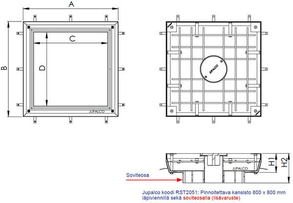
Pinnoitettavat neliökansistot läpiviennillä
HST / RST tai alumiini Pinnat voidaan viimeistellä usealla eri tavalla
Pinnoitettava kansisto, jossa kannen keskellä on läpivienti. Sopii messuhalleihin tai torialueille
joissa tekniikkakaivoista on tuotava esim. sähkökaapeleita tai vesiletkuja lattiapinnan yläpuolelle.
Kansisto voidaan sulkea kokonaan peitelevyn avulla. Kysy myynnistämme eri kokovaihtoehtoja..
Kaasutiiviit pinnoitettavat neliökansistot RST / HST läpiviennillä, tiivisteellä
| Nimitys |
Lujuus- luokka |
Kehyksen ulkomitat A x B |
Vapaa aukko C x D |
Korkeus H1 mm |
Jupalco koodi |
Alv 0% |
Pinnoitettava kansisto 420 x 420 tiivisteellä sekä läpiviennillä tarkastusluukun vapaa aukko 80mm | B125 (15tn) | 420 x 420 | 280 x 280 | 80 | RST2050 | pyydä tarjous |
Pinnoitettava kansisto 800 x 800 tiivisteellä sekä läpiviennillä tarkastusluukun vapaa aukko 150mm | D400 (40tn) | 800 x 800 | 620 x 620 | 160 | RST2051 |
Soviteosa, lisävarusteena tartuntaraudat (soviteosan kanssa kansistojen vapaa aukko voi muuttua) | Muoviputkille ja betonirenkaalle Tiedustele eri kokovaihtoehtoja |
 
|